Structura
- Structura autoportanta din tabla laminata la cald LBC grosime 3mm profilate la rece, profile otel imbinate prin electrosudura.
- Rama superioarã are o sectiune ce permite preluarea apelor pluviale si evacuarea lor prin stilpii de sustinere.
- Stilpii de sustinere sunt alcatuiti din profil laminat de 3 mm grosime, si datorita formei ofera posibilitatea scurgerii apelor colectate de rama superioara.
- Fiecare container este prevazut cu 4 elemete de colt dispuse superior pentru a asigura manipularea usoara si in siguranta a containerului.
- Structura este asamblata complet prim electrosudura.
- Protectia la intemperii este realizata prin aplicarea in doua straturi a unui grund alchidic, si a vopselei de protectie avind nuanta de RAL 7932 (gri). Containerele pot fi etajate P+1, in acest caz vor fi luate masuri de asigurare si ancorare a containerelor.
Inchiderile.
- Inchiderile(peretii si acoperisul) sunt realizate din panouri sandwich cu spuma poliuretanica 60 mm grosime si avind culoarea RAL 9002 (interior si exterior); la cerere, din panouri sandwich cu fata exterioara tabla vopsita si fata interioara cu strat de fibra de sticla .
- Pardoseala este realizata din panouri termoizolante cu rezistenta ridicata, si au intarituri suplimentare din teava rectangulara, si au stratul finit din covor PVC de trafic greu, cu imbinari sudate pentru etanseitate.
- Imbinarea intre pardoseala si pereti este finisata prin aplicarea unei plinte flexibile din PVC, aplicata prin lipire
- Compartimentarile interioare sunt realizate din panouri tip sandwich, cu spuma poliuretanica de grosimea 40mm
Tamplaria (in functie de model) :
- Usa exterioara este uzual metalica, marca Horman, model ZK 875x2000 sau usa din timplarie PVC culoare alba, cu geam temopan si/sau panel termoizolant; sistemul de inchidere pentru usa din PVC este multipunct, cu prag din Aluminiu, deschidere spre exterior, la cererea beneficiarului se pot monta si alt tip de usi.
- Ferestrele sunt din profile PVC culoare alba, cu geam termopan clar(4+16+4) si uzual au dimensiunile 800x1100 mm. Pentru baie se folosesc ferestre cu geam mat, de dimensiune 600x600. Ambele tipuri de ferestre sunt oscilobatante.
- Optional, se pot adauga jaluzele exterioare din PVC sau interioare din Aluminiu.
- Timplaria interioara(usi, ferestre.....) sunt realizate din timplarie PVC
Instalatia electrica.
- Conectarea containerelor la curent electric se face direct la tabloul electric general sau printr-o priza de conexiune trifazica de 32A . Alimentarea se face uzual monofazic, doar la cererea beneficiarilor se prevede alimentare trifazica.
- Tabloul electric interior, este prevazut cu o siguranta diferentiala principala de 25A, o siguranta automata de 16A destinata circuitului de prize standard(maxim 4 prize pe circuit), o siguranta automata de 16 A destinata circuitului de incalzire-racile(maxim 2 prize pe circuit), si o siguranta automata de 10A destinata circuitului de iluminat.
- conductorii folositi sunt de 2,5mm2 pentru circuitele de prize, 1,5mm2 pentru circuitul de iluminat, si 4mm2 pentru racordarea containerului.
- fiecare container este prevazut cu borna de echipotentializare generala a containerului.
- puterea uzuală maxim instalata este de 5,5KW , alta capacitate la cerere .
Amplasarea Containerelor
- pentru amplasarea modulelor individuale, respectiv amplasare pe un singur nivel, nu este necesara o fundatie, modulul se amplaseaza pe cale distantiere(cuburi de beton, caramida compacta....) amplasate toate la acelasi nivel, astfel incit modulul sa fie amplasat drept. Se recomanda folosirea a 3 astfel de cale pe latura lunga, respectiv de 6m. In cazul amplasarii containerelor pe o platforma betonata, se va avea grija, ca evacuarea apelor pluviale din stilpi sa nu fie obturata.
- la containere fara pardoseala acestea se vor amplasa pe platforma betonata, evacuarea apelor meteorice se va face prin elemente de evacuare montate la partea superioara a structurii metalice, asigurindu-se ca interiorul containerului este protejat de patrunderea apei ;
- in cazul ansamblurilor supraetajate este necesara o examinare geologica a solului, si dimensionarea calelor in functie de acest lucu.
CONFIGURATII
Containere executate în configuraţie adaptată condiţiilor de amplasare si echipamentelor pe care le contine.
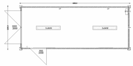
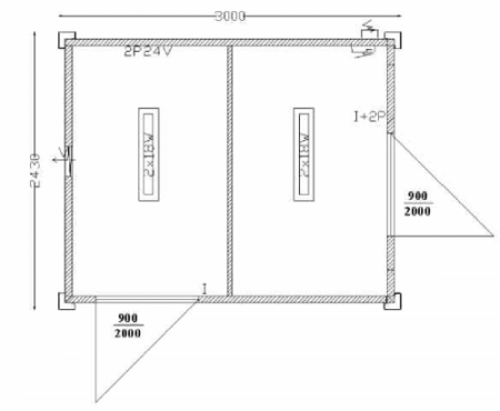
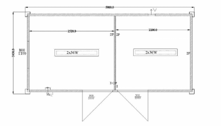
Containere cu lungimi de 6 m, 5 m sau 3 m;
Containere cu inaltime de 2,55 m sau 3 m
Containere cu 1, 2 sau 3 compartimente;
Containere cu sau fara pardoseala;
Containere cu usi simple sau duble;
Containere cu pereti interiori protejati cu fibra de sticla;
Cabine termoizolate echipate 1,2 m x 0, 85 m;
Schite exemplificative module



